Italiano
210.000 €

LOFT CONTEMPORANEO DI DESIGN – PARCO DORA / SPINA 3

Loft in vendita • Torino (San Donato) - Corso Svizzera, 185 bis
Corso Svizzera – Centro Direzionale “Piero della Francesca”.

Nel cuore della zona Parco Dora – Spina 3, proponiamo in vendita un loft residenziale di alto profilo, situato nel rinomato complesso “Piero della Francesca”, a pochi minuti dal centro città e comodamente servito da mezzi pubblici e principali arterie stradali.

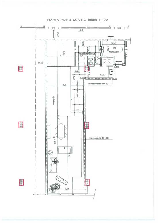
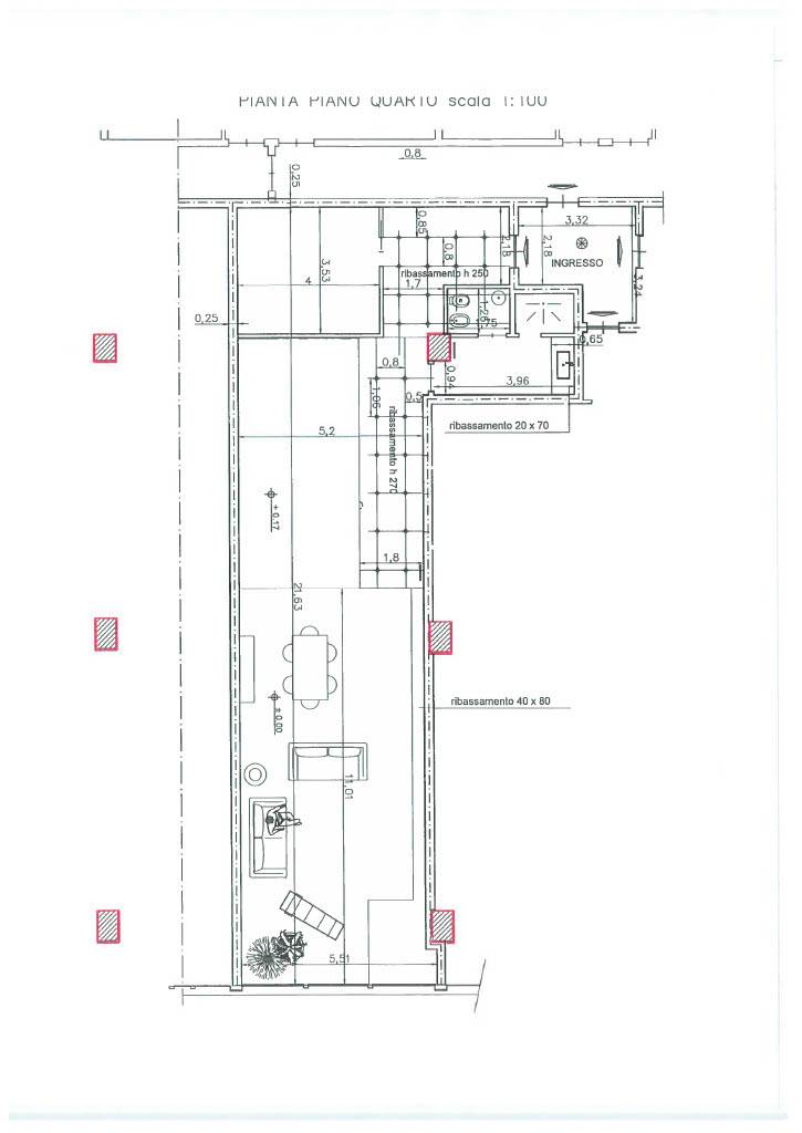
L’immobile, di circa 140 mq, si trova al 2° piano con ascensori e montacarichi, e si distingue per l’eccezionale luminosità e i soffitti alti 4 metri con travi in cemento a vista, che donano carattere e ampiezza agli ambienti.
Il loft si presta perfettamente a single o coppie, grazie agli spazi open‑space, alle metrature ottimizzate e alla configurazione pensata per un utilizzo pratico e funzionale. Non risulta invece idoneo per nuclei familiari alla ricerca di ambienti separati o camere aggiuntive.

Completamente ristrutturato con materiali di qualità e finiture curate, il loft presenta un ingresso con un comodo disimpegno, perfetto per organizzare un spazio guardaroba.
L’Open Space con ampia vetrata a tutta parete, apribile, con doppi vetri e tende oscuranti, con la zona di cucina moderna a vista, completamente attrezzata, il soggiorno living, l'angolo studio e la zona notte riservata.
L’ampio antibagno precede l’accesso alla zona disimpegnata dei sanitari, con lavandino annesso, separati dal resto del bagno con porta scorrevole, ampia doccia di marmo nero e zona lavandino.
Di fronte all’ingresso una capiente cabina armadi organizza lo spazio in maniera funzionale e pratica.
Tutto l’ambiente è valorizzato da un sapiente gioco di luci che ne esalta i volumi e le finiture.

Il riscaldamento è centralizzato con gestione autonoma tramite cronotermostato e valvole di zona.
Sono inoltre presenti un impianto autonomo di climatizzazione/pompa di calore e un impianto di trattamento dell’aria, che assicurano comfort in ogni stagione.

Il loft è arredato in stile minimal contemporaneo, con arredi e complementi di qualità; la cucina è dotata di piano a induzione, forno, lavastoviglie, frigorifero e freezer.

Il complesso Piero della Francesca, nato sull’area dell’ex Cotonificio Mazzonis in pieno stile post industriale, è stato realizzato nel 1978 su progetto dell’architetto Gabriele Manfredi, e riqualificato per ospitare uffici e appartamenti. Il centro garantisce un elevato standard di tranquillità e sicurezza grazie al servizio di portineria e sorveglianza operativo H24 7/7, oltre alla presenza di palestra, bar e ristoranti interni.
È inoltre disponibile l’acquisto di posti auto coperti collegati direttamente ai piani tramite ascensore.

L'immobile è caratterizzato da alti soffitti e spazi aperti, richiama la storia del complesso. Un’abitazione esclusiva, moderna e pronta da vivere, ideale per chi cerca uno spazio di design nel cuore della città, a ridosso del verde del Parco Dora.
.
SPESE CONDOMINIALI :€./anno 1.250 ca
SPESE DI RISCALDAMENTO: €./anno 750 ca
FOTOGRAFIE: sono visionabili più fotografie sul sito www.bariccoezinna.it
VIDEO: visionabili sul sito www.bariccoezinna.it
CONTATTO: informazioni dirette al numero 329.3141007 Carlo
COMPENSO DI MEDIAZIONE : 4% FINITO sul prezzo di acquisto, alla data prevista per il contratto preliminare.
PRIVACY : ai sensi del Regolamento UE 2016/679 (Informativa sul trattamento dei dati personali) l’Agenzia immobiliare informa che la scheda informativa è consultabile sul sito web al link: http://www.bariccoezinna.it/it/privacy-policy
.
Il presente stampato ha valore puramente indicativo e non costituisce elemento contrattuale né presupposto contrattuale.
Tutte le misure eventualmente riportate devono considerarsi indicative.
.
Baricco & zinnA – agenti immobiliari a Rivoli, attivi nel mercato immobiliare da oltre quarantacinque anni, sono riconosciuti come un'organizzazione esperta e affidabile. Si distinguono per serietà e integrità nel rapporto con i clienti. In ogni aspetto del loro lavoro, Baricco & zinnA aderiscono a principi di trasparenza, lealtà e professionalità. Iscritti alla FIMAA Torino dal 1979.
Parliamo anche Inglese, Francese e Spagnolo.

L'ESPERIENZA VALE DI PIÙ. DAL 1979.
Caratteristiche principali
Codice
2505300
Città
Torino (San Donato)
Categoria
Loft
Prezzo
210.000 €
Spese condominiali
2.000 € / anno
Locali
1
Camere
1
Bagni
1
Mq
140
Mq calpestabili
140
Piano
2
Classe energetica
D
145,89 kWh/m²a
Stato Immobile
Ristrutturato
Grado
Signorile
Posizione
Periferia
Panorama
Vista Aperta
Orientamento
Sud
Lati Liberi
1
Giardino
Cortile
Arredi
Semi Arredato
Tipo Soggiorno
Salone
Tipo Cucina
Angolo Cottura
Riscaldamento
Conta Calorie
Tipo Riscaldam.
Caldaia a Condensazione
Tipo Impianto
Pavimento
Fonte Energetica
Metano
Acqua Calda
Centralizzata
Raffrescamento
Split
Infissi
Metallo Doppio Vetro
Serramenti
Ottimo
Persiana
Personalizzato
Pavim. Giorno
Ceramica
Pavim. Notte
Ceramica
Pavim. Cucina
Ceramica
Pavim. Bagno
Ceramica
Accesso Disabili
Nessuna Barriera
Accesso interno disabili
Pieno accesso

Accessori: Aria Condizionata, Ascensore, Bagno Handicap, Doppi Vetri, Impianto Satellitare, Parco Condominiale, Porta Blindata, Portineria/Custode, Video Sorveglianza

Mappa
Corso Svizzera 185 bis, Torino (TO)
Video
Richiedi informazioni
Invia
Condividi su
Cookie preference